欢迎来到季晨网!
收藏到桌面
免费发布信息
·
北京
[切换]
农林牧副渔
车辆买卖
宠物领养
婚庆摄影
生活服务
装修建材
教育培训
首页
B2B
68季晨网
全国漏水
武汉礼品回收
重庆礼品回收
重庆老酒回收
二七网
车辆
宠物
生活
教育
头条热点
店铺
北京季晨网
>
北京装修建材
>
北京装修设计
>
朝阳装修设计
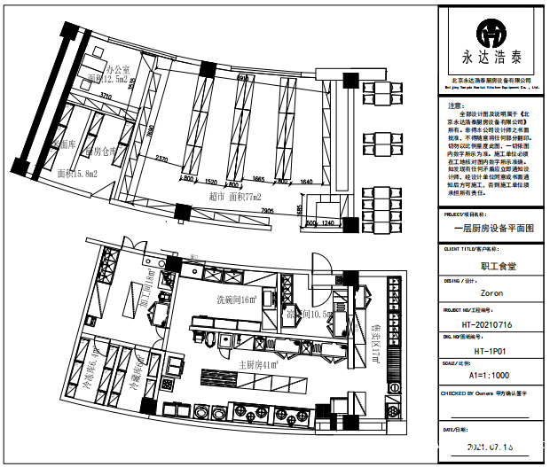
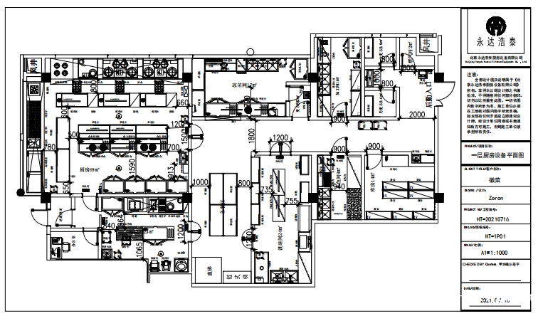
餐饮餐厅设计装修/员工食堂餐厅设计装修
2021-07-21 14:06:11发布,
长期有效
,526浏览
置顶
定时刷新
|
收藏
|
举报
|
5图
区域:
朝阳 酒仙桥
联系人:
邵先生
电话:
13083618956
点击查看完整号码
季晨网提醒您:
本站仅作为便民信息搬运工,请自行分辨信息真假,联系前请仔细阅读《
谨防诈骗须知
》
信息详情
北京永达浩泰厨房设备有限公司专业承接厨房设备工程,酒店项目工程,提供厨房设计服务,厨房设备维修服务,针对对象企事业单位食堂,学校,医院,社会餐饮等。
联系我时,请说是在季晨网看到的,谢谢!
首发网址:http://bj.jcwgw.com/zhuangxiusheji/39298.html
查看全部北京装修设计信息
发布一条北京装修设计信息
相关图片
您可能感兴趣
[装修设计]
合肥幼儿园装修之不可忽视的色彩搭配学问
01-21
[南京装修设计]
培训班白板玻璃加工安装
[2图]
01-17
[南京装修设计]
南京舞蹈房镜子供应商
[2图]
01-17
北京新发布
[开锁/修锁]
建湖专业开锁 家庭锁 卷帘门锁 卧室门锁 开刷卡锁
[1图]
04-04
[开锁/修锁]
建湖开B级C级锁 全城连锁 收费合理
[1图]
04-04
[开锁/修锁]
开锁之前一定要确认好身份,搞清楚这些问题才能进行开锁
[2图]
04-04
[开锁/修锁]
恩施开锁服务需要收多少钱?
[1图]
04-04
[资讯热点]
GEO系统发布招商代理
[图]
12-15
上一篇:
餐饮餐厅设计装修/员工食堂餐厅设计装修/餐饮餐厅厨
下一篇:
兴义管道疏通分析兴义化粪池清理的过程步骤
发布人档案
北京永达浩泰厨房设备有限公司
用户级别:
免费会员
信用等级:
实名认证:
相关类目
北京家庭装修
北京办公室装修
北京店面装修
北京局部装修
北京别墅装修
北京房屋改造
北京二手房翻新
北京装修设计
北京商业装修
北京地坪
北京卫浴
北京洁具
北京窗帘布艺
北京五金
北京灯饰
北京门窗
北京水电
北京墙面地板
北京吊顶建材
北京橱柜
北京楼梯
北京暖气地暖
北京住宅家具
北京商务办公家具
北京智能家居系统
15392122075
热门城市
ABCDFG
HJKLMN
PQRST
WXYZ
全国
北京
上海
天津
重庆
广州
深圳
杭州
福州
厦门
石家庄
郑州
武汉
长沙
南京
南昌
西安
成都
A
安庆
安顺
安阳
鞍山
阿拉善
安康
阿坝
阿里
阿克苏
阿勒泰
阿拉尔
B
北京
蚌埠
亳州
白银
北海
百色
毕节
保定
白山
白城
本溪
包头
巴彦淖尔
滨州
宝鸡
巴中
巴音郭楞
博尔塔拉
保山
C
重庆
潮州
滁州
巢湖
池州
崇左
沧州
承德
长沙
常德
郴州
长春
常州
朝阳
赤峰
长治
成都
昌都
昌吉
楚雄
D
东莞
定西
大庆
大兴安岭
大连
丹东
东营
德州
大同
德阳
达州
大理
德宏
迪庆
E
鄂州
恩施
鄂尔多斯
F
佛山
阜阳
福州
防城港
抚州
抚顺
阜新
G
广州
甘南
桂林
贵港
贵阳
赣州
固原
果洛
广安
广元
H
惠州
河源
杭州
湖州
合肥
淮南
淮北
黄山
河池
贺州
海口
邯郸
衡水
鹤壁
哈尔滨
鹤岗
黑河
黄石
黄冈
衡阳
怀化
淮安
葫芦岛
呼和浩特
呼伦贝尔
海东
海北
黄南
海西
菏泽
汉中
哈密
和田
红河
J
济源
江门
揭阳
嘉兴
金华
嘉峪关
金昌
酒泉
焦作
鸡西
佳木斯
荆州
荆门
吉林
景德镇
九江
吉安
锦州
济南
济宁
晋城
晋中
莒县
K
开封
克拉玛依
喀什
昆明
库尔勒
L
丽水
六安
龙岩
兰州
陇南
临夏
柳州
来宾
六盘水
廊坊
洛阳
漯河
娄底
辽源
连云港
辽阳
莱芜
临沂
聊城
临汾
吕梁
泸州
乐山
凉山
拉萨
林芝
丽江
临沧
M
茂名
梅州
马鞍山
牡丹江
绵阳
眉山
N
宁波
南平
宁德
南宁
南阳
南京
南通
南昌
南充
内江
那曲
怒江
P
普洱
莆田
平凉
濮阳
平顶山
萍乡
盘锦
攀枝花
Q
清远
衢州
泉州
庆阳
钦州
黔南
黔东南
黔西南
迁安
秦皇岛
齐齐哈尔
七台河
青岛
曲靖
R
日照
日喀则
S
神农架
上海
深圳
汕头
韶关
汕尾
绍兴
宿州
三明
三亚
石家庄
三门峡
商丘
双鸭山
绥化
十堰
随州
邵阳
四平
松原
苏州
宿迁
上饶
沈阳
石嘴山
朔州
商洛
遂宁
山南
石河子
T
天门
天津
台州
铜陵
天水
铜仁
唐山
通化
泰州
铁岭
通辽
泰安
太原
铜川
吐鲁番
塔城
W
文昌
温州
芜湖
武威
梧州
武汉
无锡
乌海
乌兰察布
吴忠
潍坊
威海
渭南
乌鲁木齐
文山
X
襄阳
仙桃
宣城
厦门
邢台
信阳
新乡
许昌
襄樊
咸宁
孝感
湘潭
湘西
徐州
新余
兴安盟
锡林郭勒
西宁
忻州
西安
咸阳
西双版纳
Y
阳江
云浮
义乌
玉林
伊春
宜昌
岳阳
益阳
永州
延边
扬州
盐城
鹰潭
宜春
营口
银川
玉树
烟台
阳泉
运城
延安
榆林
宜宾
雅安
伊犁
玉溪
Z
珠海
湛江
肇庆
中山
舟山
漳州
张掖
遵义
张家口
郑州
驻马店
周口
株洲
张家界
镇江
中卫
淄博
枣庄
自贡
资阳
昭通